';

Rehabilitació d’una casa antiga

Comments
Share
Description
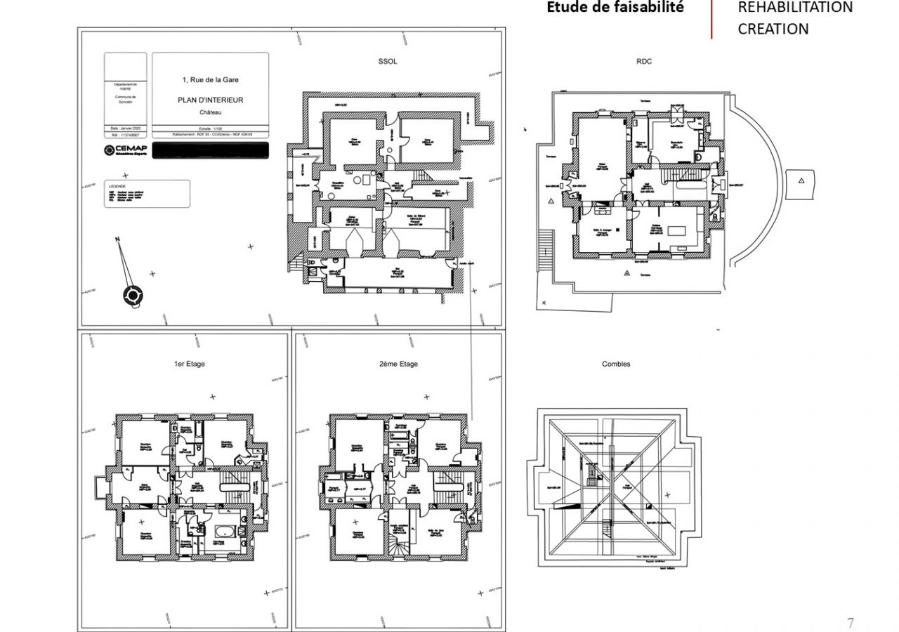
D4 – Resum de l’estudi de viabilitat – Rehabilitació i creació a Goncelin (Isère) El projecte consisteix en la rehabilitació d’una casa antiga amb les seves dependències i la creació de nous habitatges, incloent-hi apartaments i cinc viles individuals. Context: lloc patrimonial al cor de la vall del Grésivaudan, amb un entorn paisatgístic de qualitat i bona accessibilitat. Programa: Rehabilitació de l’edifici antic per crear apartaments moderns preservant-ne l’autenticitat. Construcció de cinc viles contemporànies, integrades al lloc i amb una tipologia residencial variada. Reptes: Posada en valor patrimonial i respecte de les prescripcions del PLU. Resposta a la demanda local d’habitatges diversificats. Integració paisatgística i enfocament sostenible (qualitat arquitectònica, confort, respecte pel medi ambient). Conclusió: L’estudi confirma la viabilitat d’un projecte residencial equilibrat, que combina la conservació del patrimoni amb la creació contemporània. Aquesta operació contribueix a l’atractiu de Goncelin i a la valorització arquitectònica i paisatgística del lloc.