';

Reorganització intetior i de jardí

Comments
Share
Description
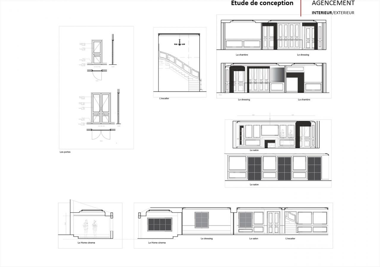
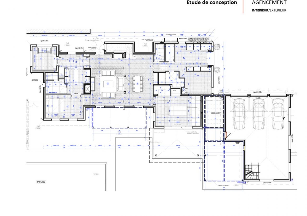
D8 Resum de l’estudi de viabilitat – Reorganització d’un xalet i creació de jardí El projecte tracta de la renovació interior d’un xalet existent, amb una reorganització dels espais per modernitzar-lo mantenint un estil atemporal i elegant. L’estudi destaca: Reorganització interior i mobiliari: harmonització dels volums, elecció del mobiliari i dels tons de color, treball dels materials i acabats (guix, textures, etc.) per crear un ambient coherent i refinat. Disseny del jardí: creació d’un jardí ampli que permet generar diferents espais vegetals, oferint contrastos estètics alhora que manté una harmonia global. Conclusió: L’estudi confirma la viabilitat d’un projecte que combina modernitat, elegància i funcionalitat, valoritzant tant els espais interiors com els exteriors, i oferint un entorn de vida còmode i estètic.