Rehabilitación de salones en La Commanderie
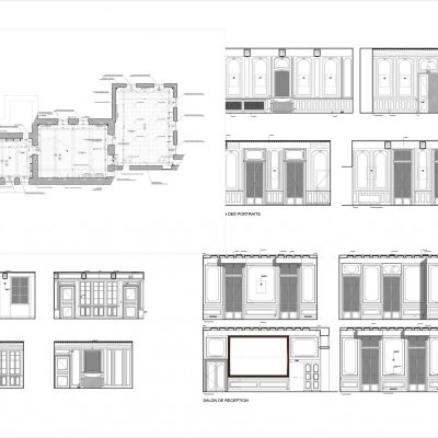
La rehabilitación de los salones de recepción de La Commanderie, en Eyben, conserva el espíritu institucional del lugar y afirma la voluntad de asegurar una continuidad familiar, a la vez clásica y contemporánea. Este establecimiento atípico en la región destaca por la valorización de su espacio único, que refuerza sus características identitarias. El proyecto de realce de las características propias del lugar se caracteriza por la creación de decoraciones murales que retoman los cuadros y paneles de antaño. La iluminación de detalles arquitectónicos y decorativos, como la tapicería de Aubusson, el cambio de sillas y mesas, así como la selección de la cristalería, han guiado la realización del proyecto, llevado a cabo en un plazo muy corto gracias a una anticipación rigurosa de las fases de la obra.