';

Interior Redesign and Garden

Comments
Share
Description
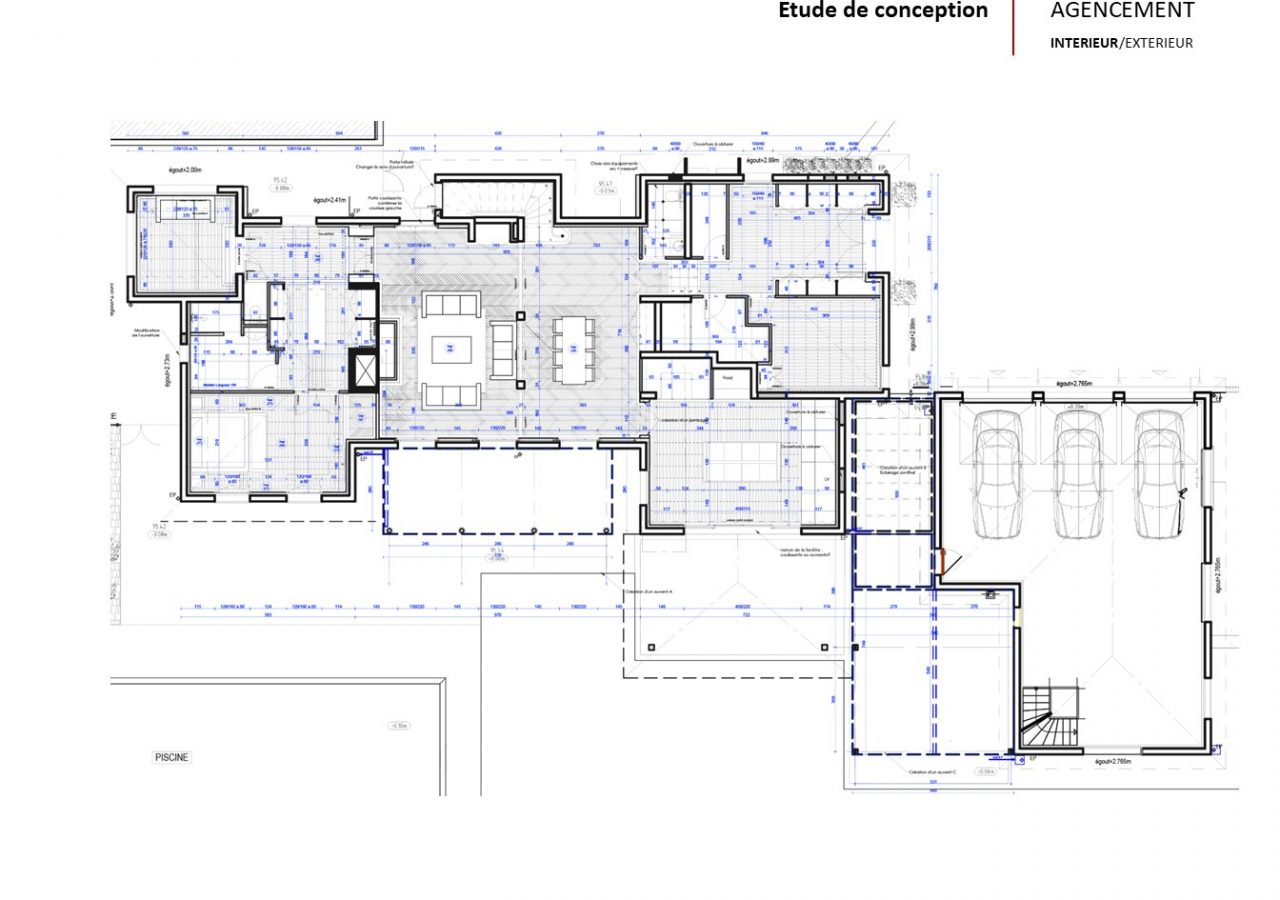
D8 Feasibility Study Summary – Chalet Interior Redesign and Garden Creation The project focuses on the interior renovation of an existing chalet, reorganizing spaces to modernize it while maintaining a timeless and elegant style. The study highlights: Interior redesign and furniture: harmonization of volumes, selection of furniture and color tones, work on materials and finishes (plaster, textures, etc.) to create a coherent and refined environment. Garden design: creation of a spacious garden allowing the generation of different vegetated areas, offering aesthetic contrasts while maintaining overall harmony. Conclusion: The study confirms the feasibility of a project combining modernity, elegance, and functionality, enhancing both interior and exterior spaces, and providing a comfortable and aesthetically pleasing living environment.