';

Residential Subdivision

Comments
Share
Description
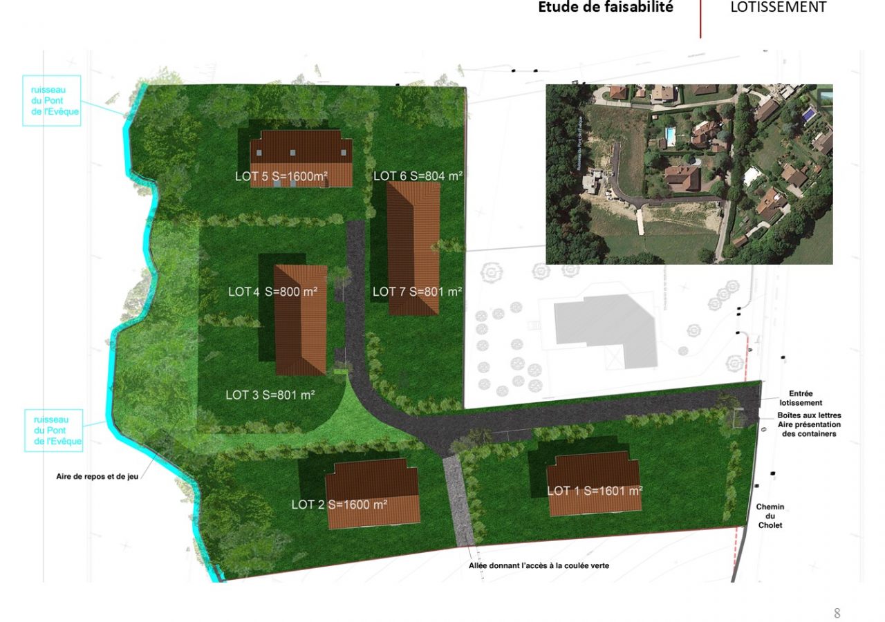
D9 Feasibility Study Summary – Residential Subdivision Development (Isère) The project focuses on the creation of a residential subdivision on a remarkable site characterized by a stream, wooded areas, and a highly valuable natural landscape. Context: area identified by PA no. 038 188 182 0002, based on a topographic survey specifying property boundaries, natural features (trees, dry-stone walls, wells), and site constraints. Program: Development of buildable plots for new housing. Enhancement of the natural setting and differentiated management of the stream banks. Safety measures and maintenance of the nearby woodland to prevent risks. Landscape and environmental management: Left bank: preservation of the existing vegetative buffer and ecological continuity. Right bank: selective clearing, removal of invasive species and unstable trees, replanting of local species (≈10 new trees). Conclusion: The study confirms the feasibility of a sustainable residential subdivision, balancing urban development with biodiversity preservation. The project enhances the “green corridor” and offers an attractive living environment, in harmony with local environmental and heritage concerns.
This site is registered on wpml.org as a development site. Switch to a production site key to remove this banner.