';

Réhabilitation et création

Comments
Share
Description
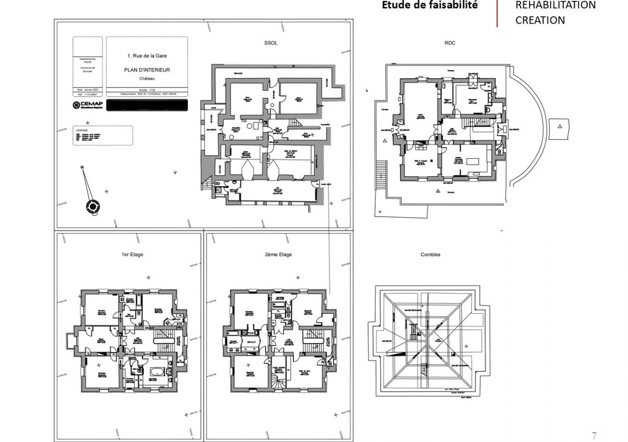
D4 Résumé de l’étude de faisabilité – Réhabilitation et création à Goncelin (Isère) Le projet concerne la réhabilitation d’une maison ancienne avec ses dépendances et la création de nouveaux logements, comprenant des appartements et cinq villas individuelles. • Contexte : site patrimonial au cœur de la vallée du Grésivaudan, bénéficiant d’un cadre paysager de qualité et d’une bonne accessibilité. • Programme : o Réhabilitation du bâti ancien pour créer des appartements modernes tout en préservant son authenticité. o Construction de cinq villas contemporaines, intégrées au site et offrant une typologie résidentielle variée. • Enjeux : o Valorisation patrimoniale et respect des prescriptions du PLU. o Réponse à la demande locale en logements diversifiés. o Intégration paysagère et démarche durable (qualité architecturale, confort, respect de l’environnement). Conclusion : L’étude confirme la faisabilité d’un projet résidentiel équilibré, associant sauvegarde du patrimoine et création contemporaine. Cette opération contribue à l’attractivité de Goncelin et à la valorisation architecturale et paysagère du site.