';

Rehabilitación de una casa antigua

Comments
Share
Description
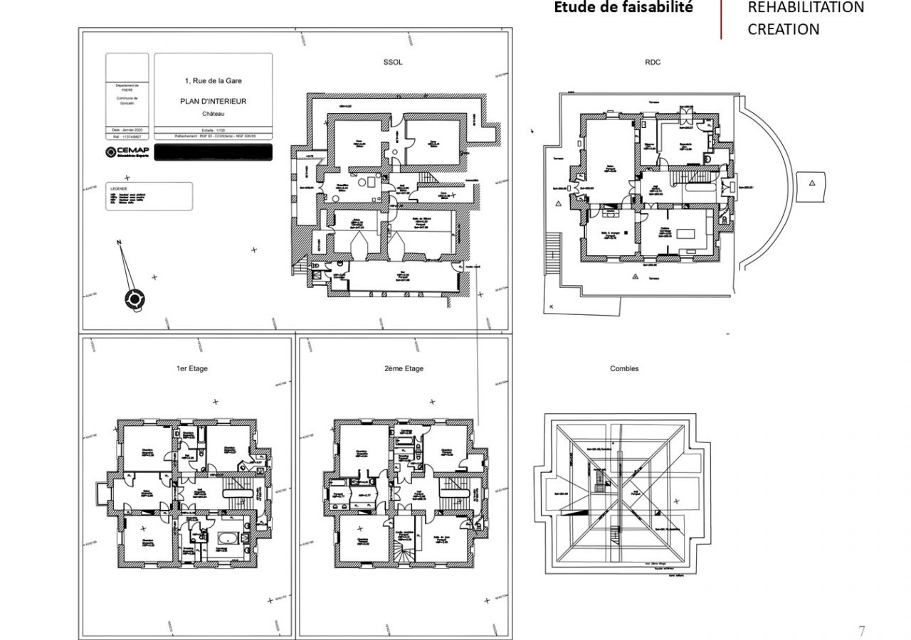
D4 – Resumen del estudio de viabilidad – Rehabilitación y creación en Goncelin (Isère) El proyecto consiste en la rehabilitación de una casa antigua con sus dependencias y la creación de nuevas viviendas, incluyendo apartamentos y cinco villas individuales. Contexto: sitio patrimonial en el corazón del valle de Grésivaudan, con un entorno paisajístico de calidad y buena accesibilidad. Programa: Rehabilitación del edificio antiguo para crear apartamentos modernos preservando su autenticidad. Construcción de cinco villas contemporáneas, integradas en el lugar y ofreciendo una tipología residencial variada. Retos: Puesta en valor patrimonial y respeto de las prescripciones del PLU. Respuesta a la demanda local de viviendas diversificadas. Integración paisajística y enfoque sostenible (calidad arquitectónica, confort, respeto al medio ambiente). Conclusión: El estudio confirma la viabilidad de un proyecto residencial equilibrado, que combina la conservación del patrimonio con la creación contemporánea. Esta operación contribuye a la atractividad de Goncelin y a la valorización arquitectónica y paisajística del lugar.
This site is registered on wpml.org as a development site. Switch to a production site key to remove this banner.